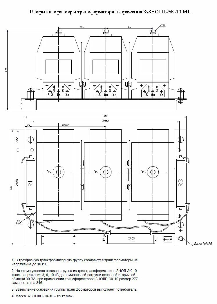
Трансформаторы напряжения знол 10