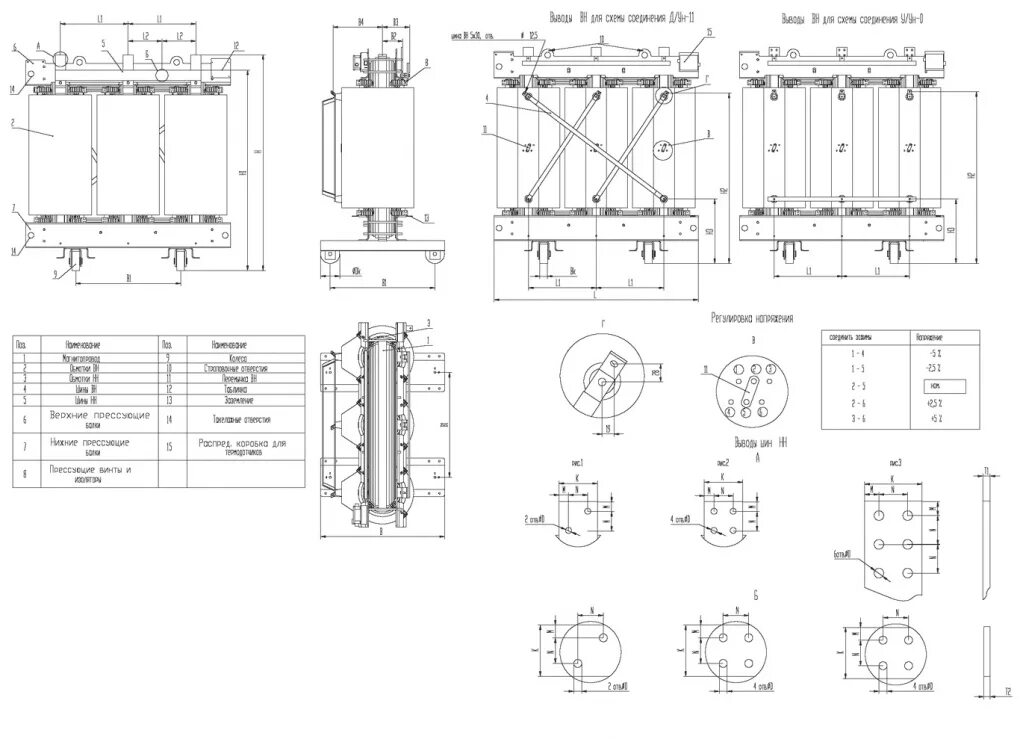
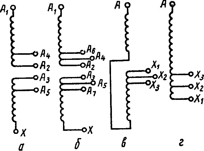
Трансформатор напряжения тс