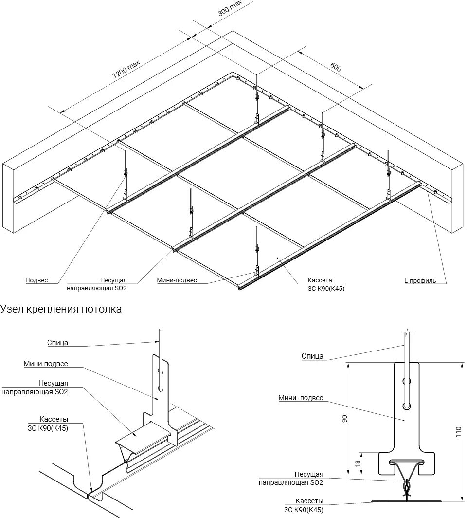
Типы потолочных систем