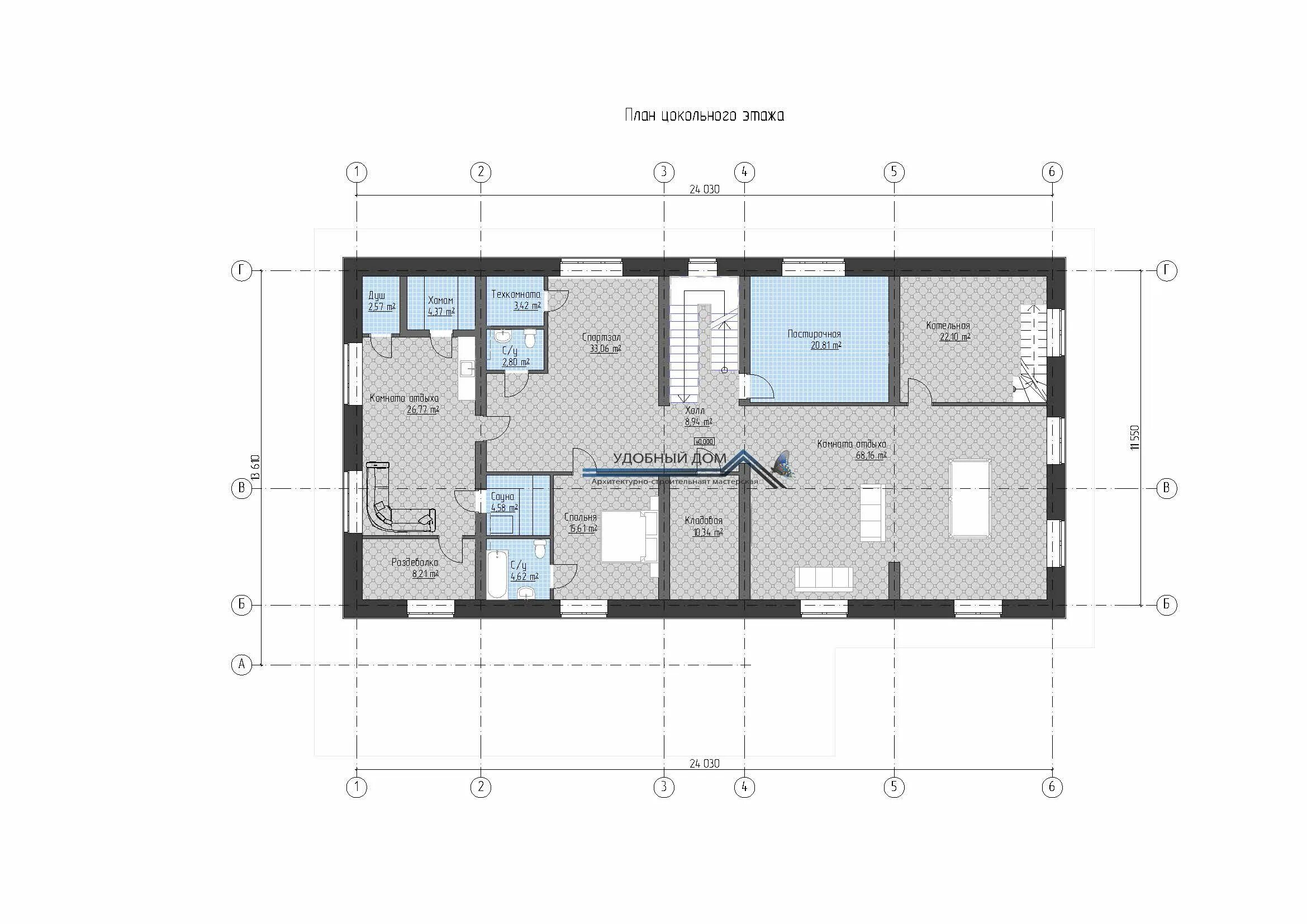
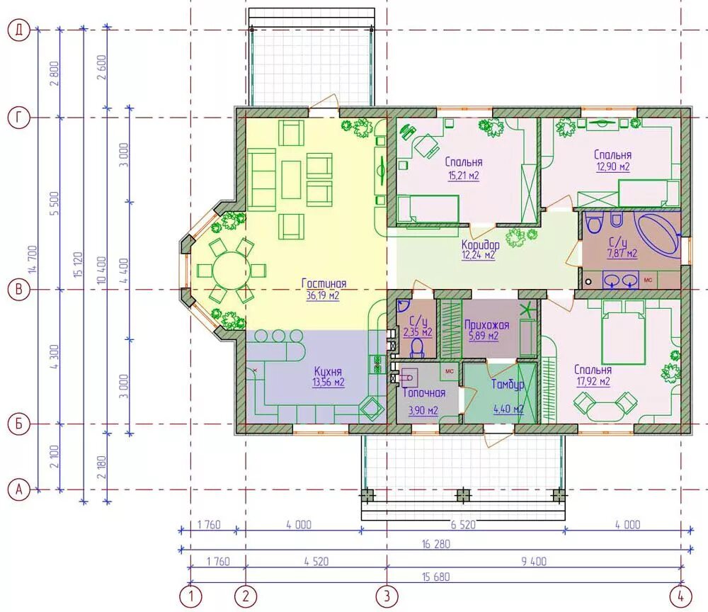
Типовые проекты одноэтажных