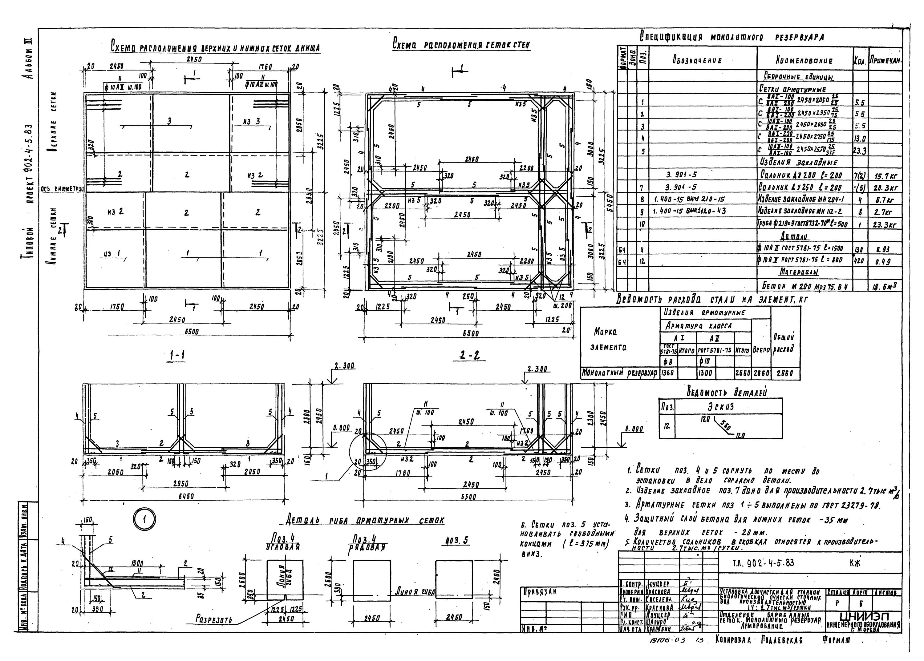
Типовой проект емкостей