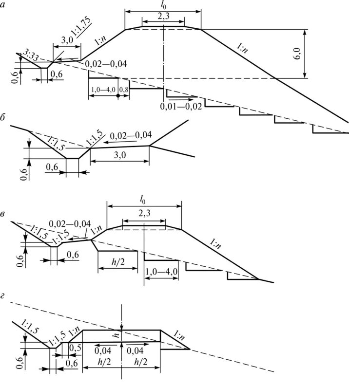
Типовой поперечный профиль насыпи