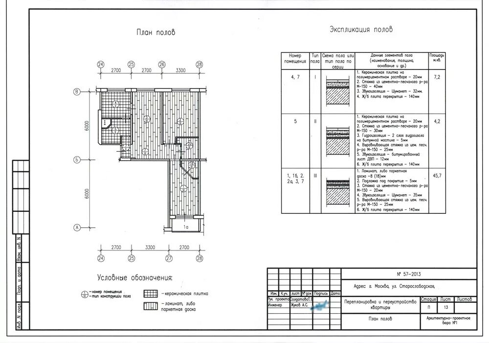
Тип пола 1