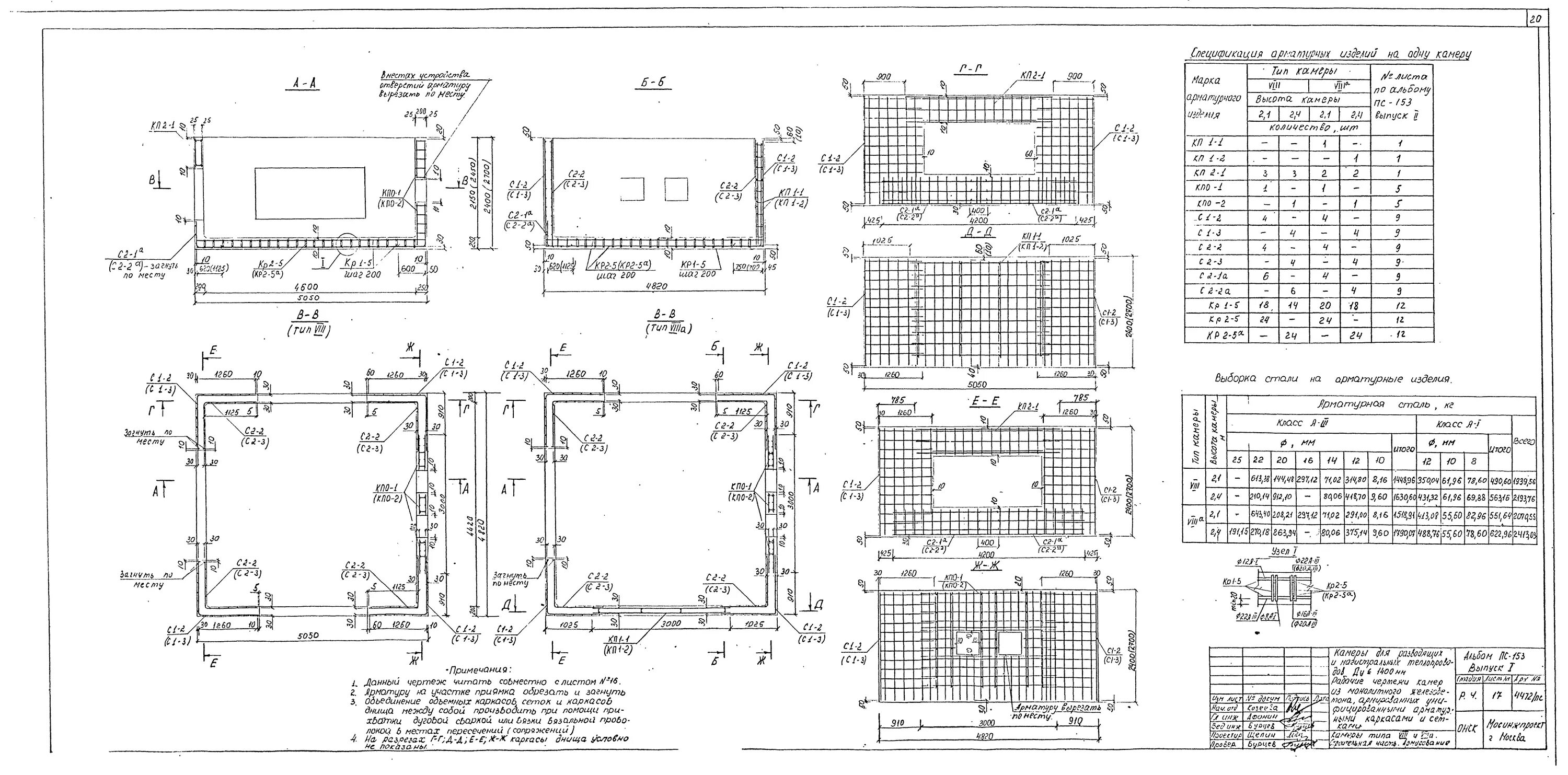
Тип 8 102