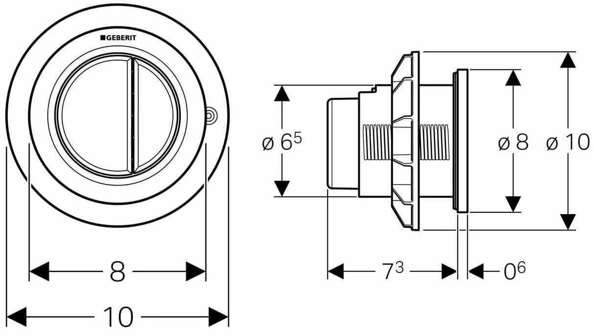
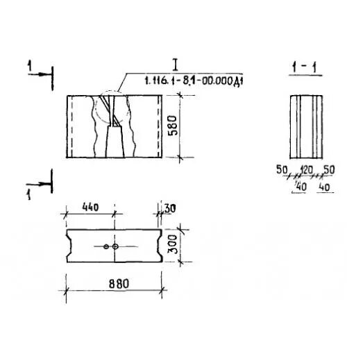
Тип 1 116