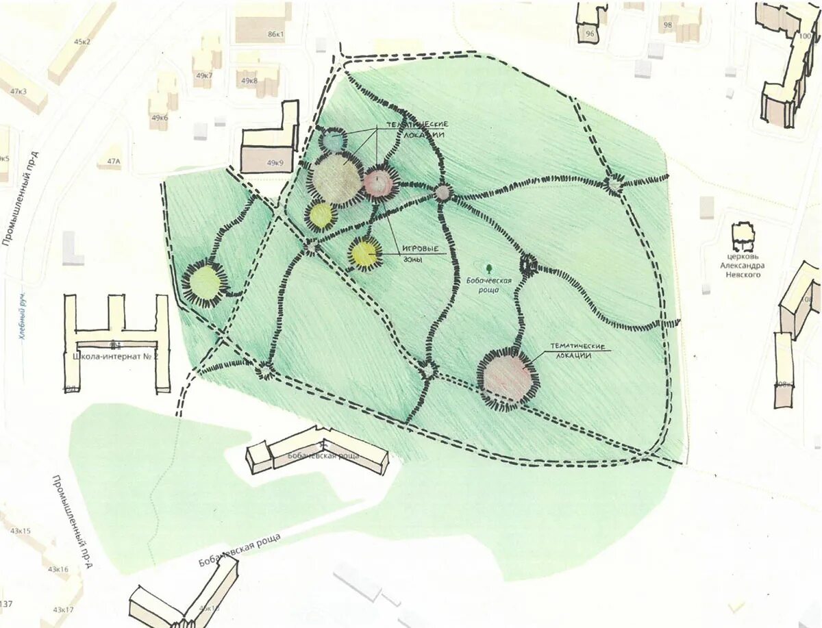
Территория которого является особой