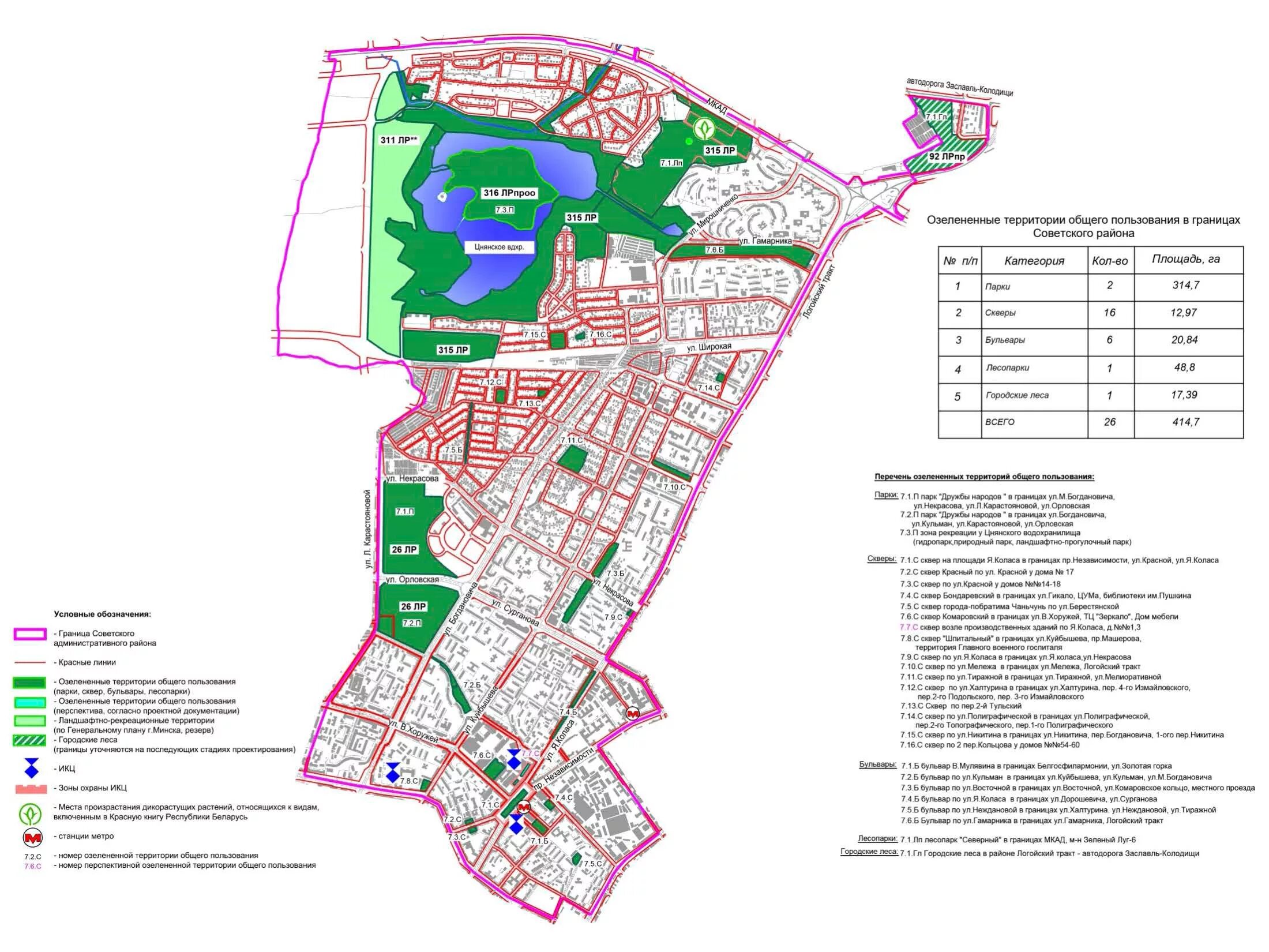
Территории общего пользования в городах