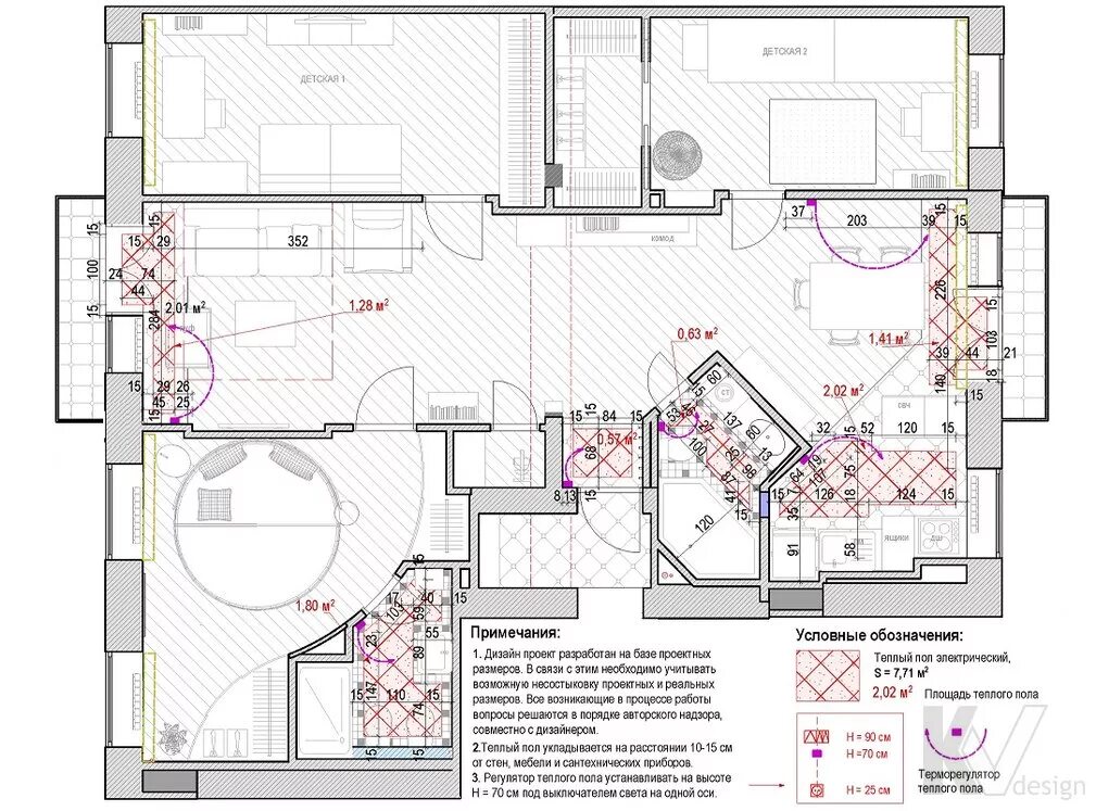
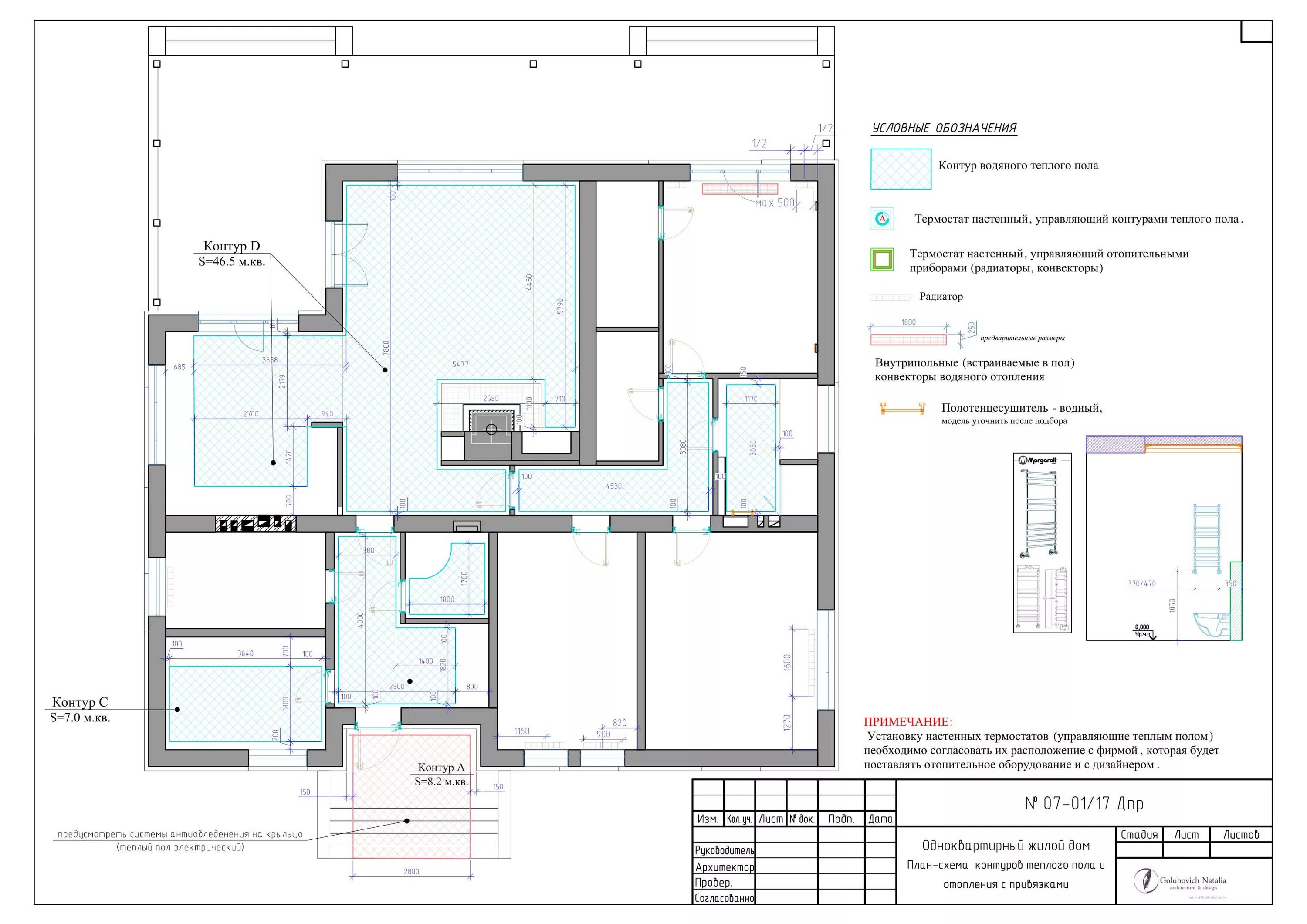
Теплый пол расстояние от стены