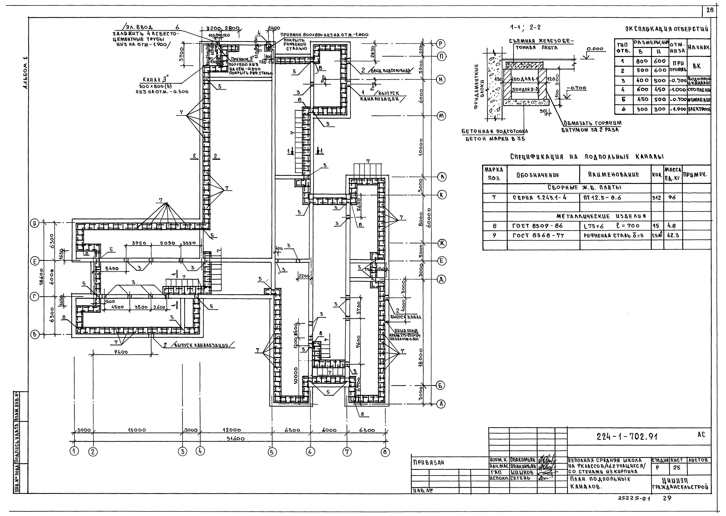
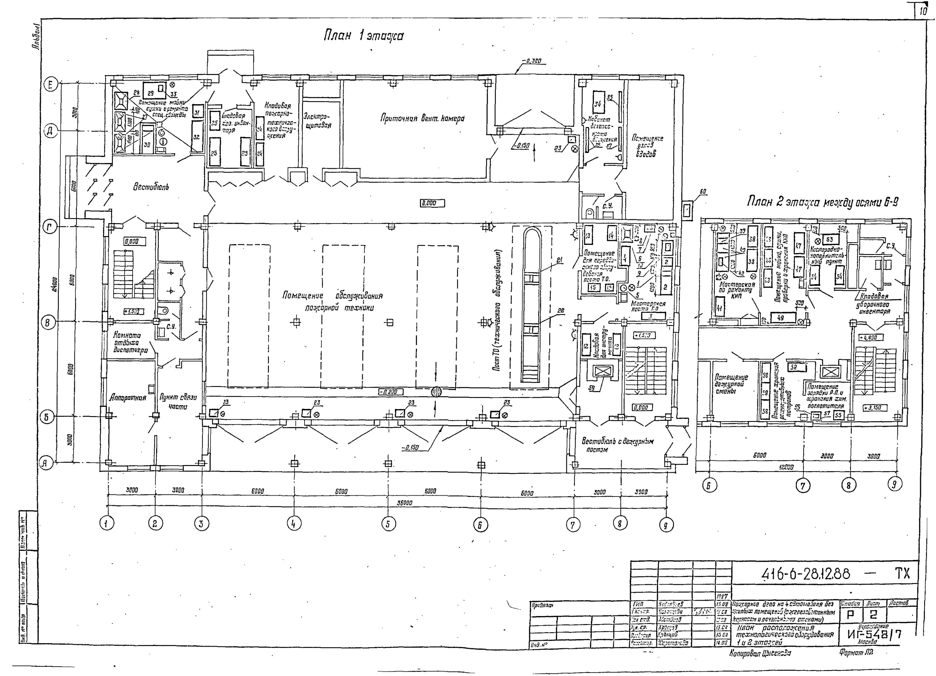
Технологическое решение здания