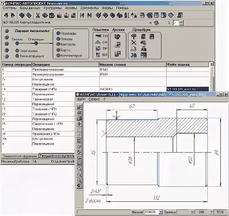
Технологическое отображение