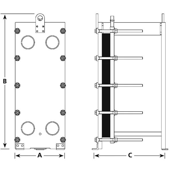
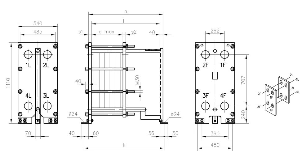
T nt c