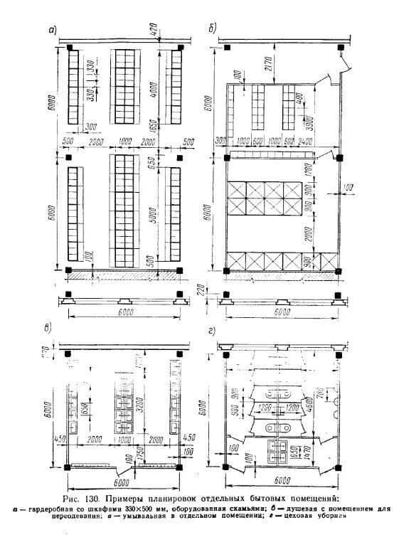
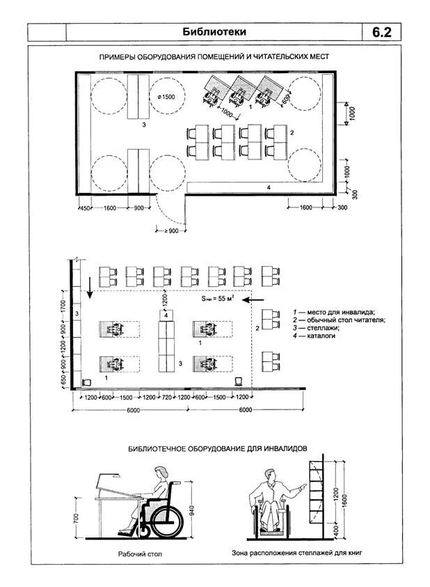
Свод правил общественных зданий