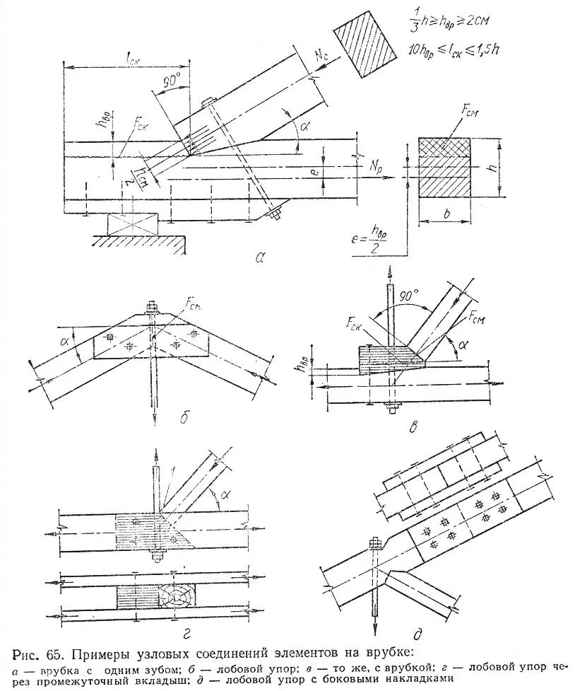
Стык примеры