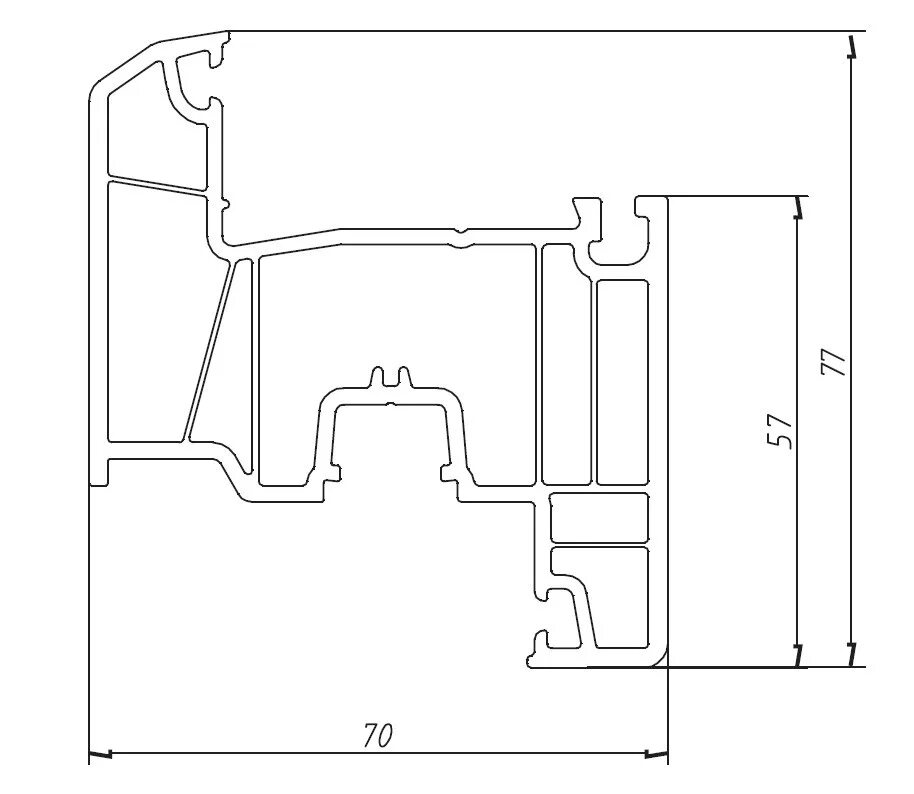
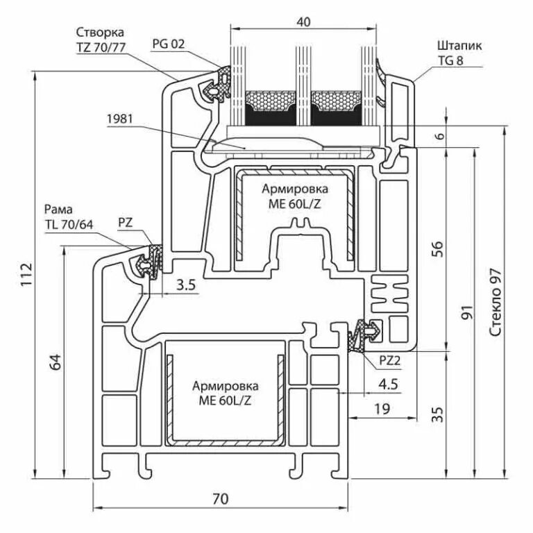
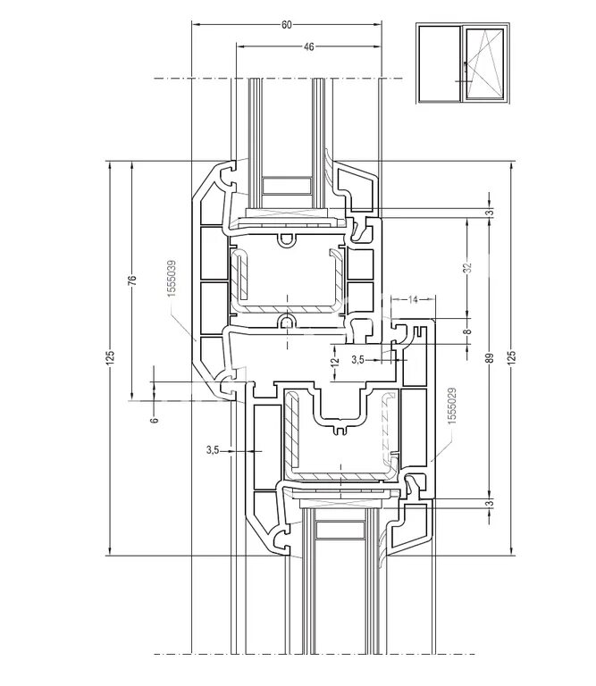
Створка пластиковой