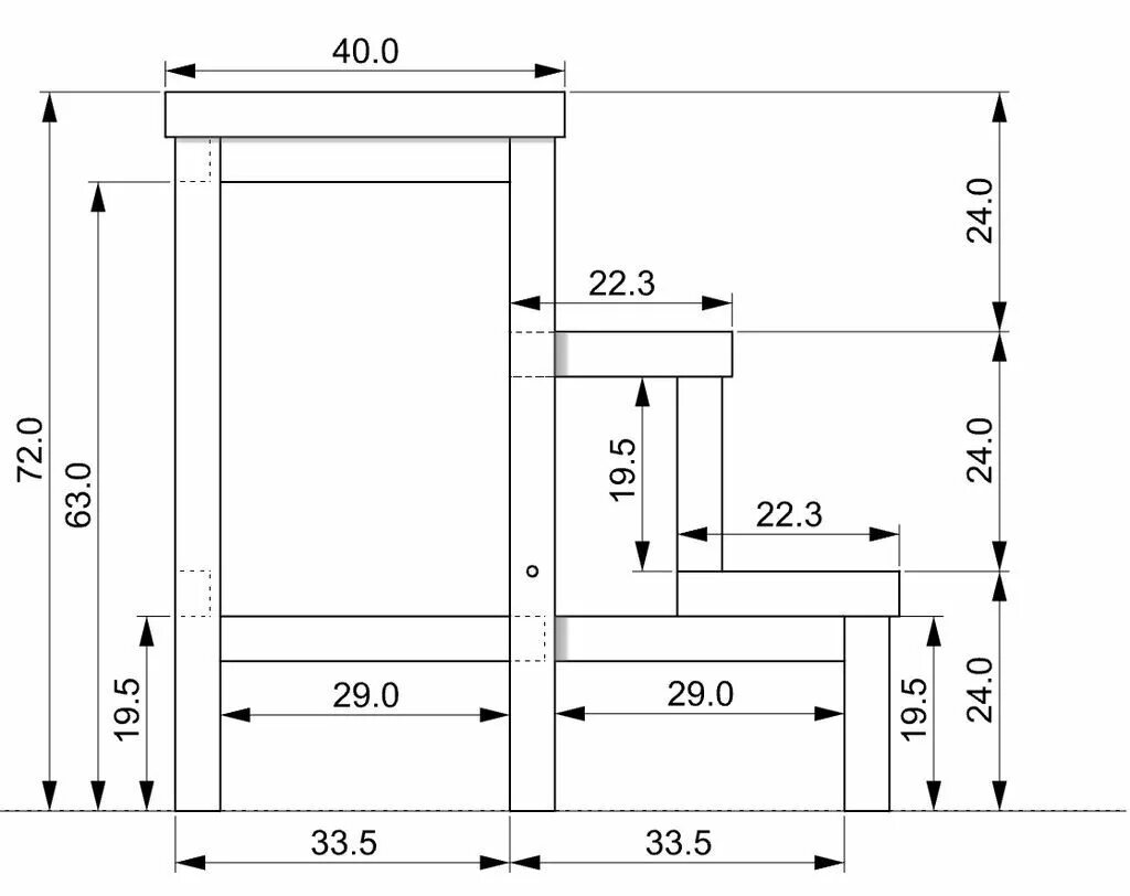
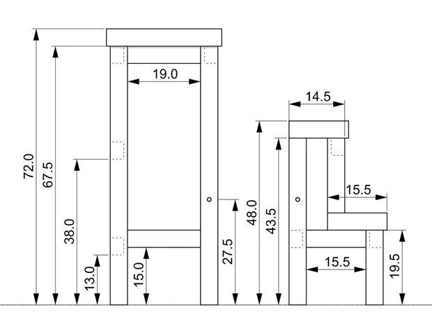
Стул для ванной размеры