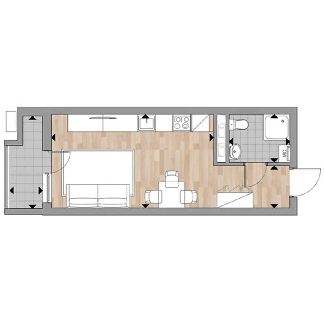
Студии в южном городе