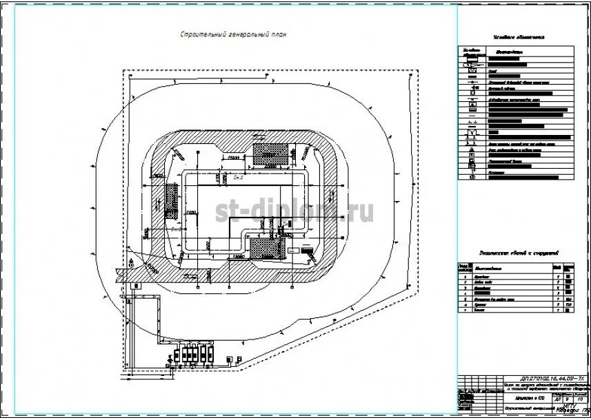
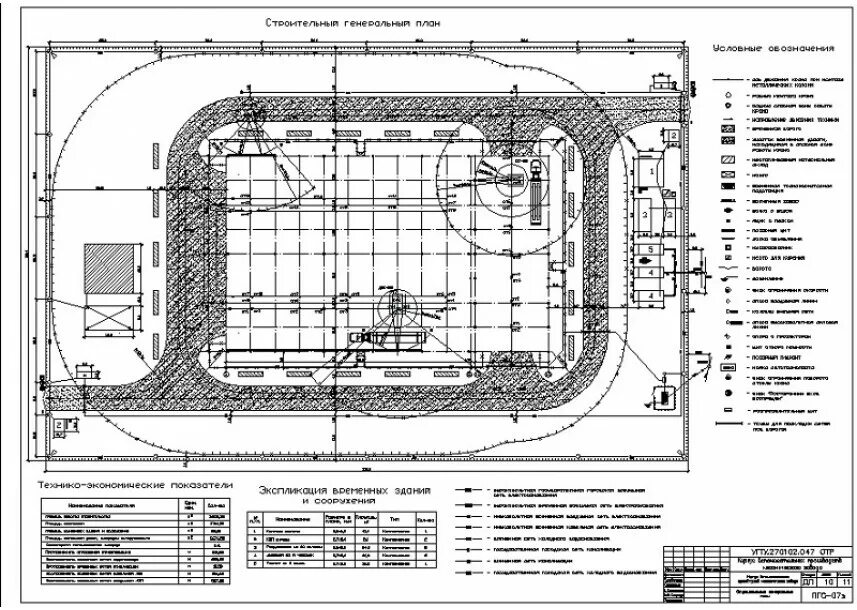
Стройгенплан разрабатывается