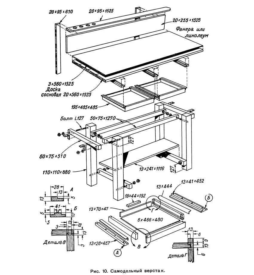
Столярный верстак из дерева размеры