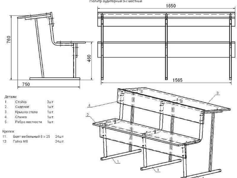
Стол из профильной трубы своими руками чертежи