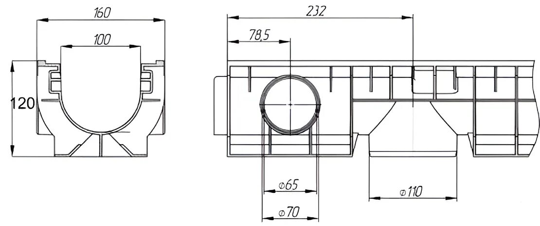
Standartpark polymax basic