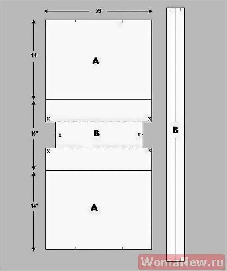
Сшить сумку шоппер из ткани выкройка