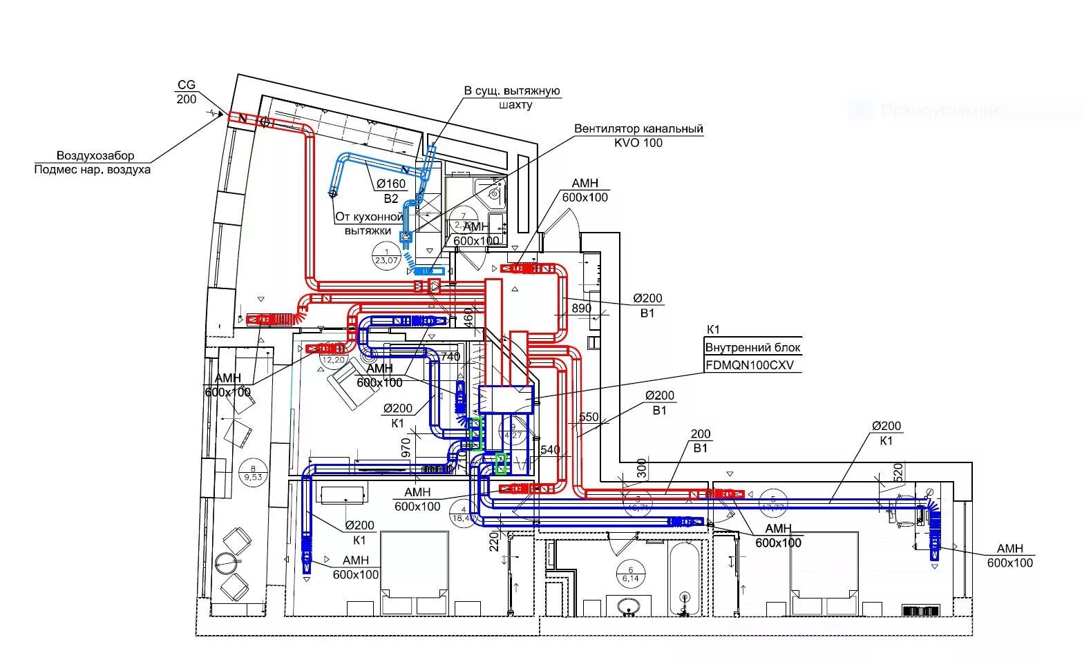
Сплит система с подмесом воздуха