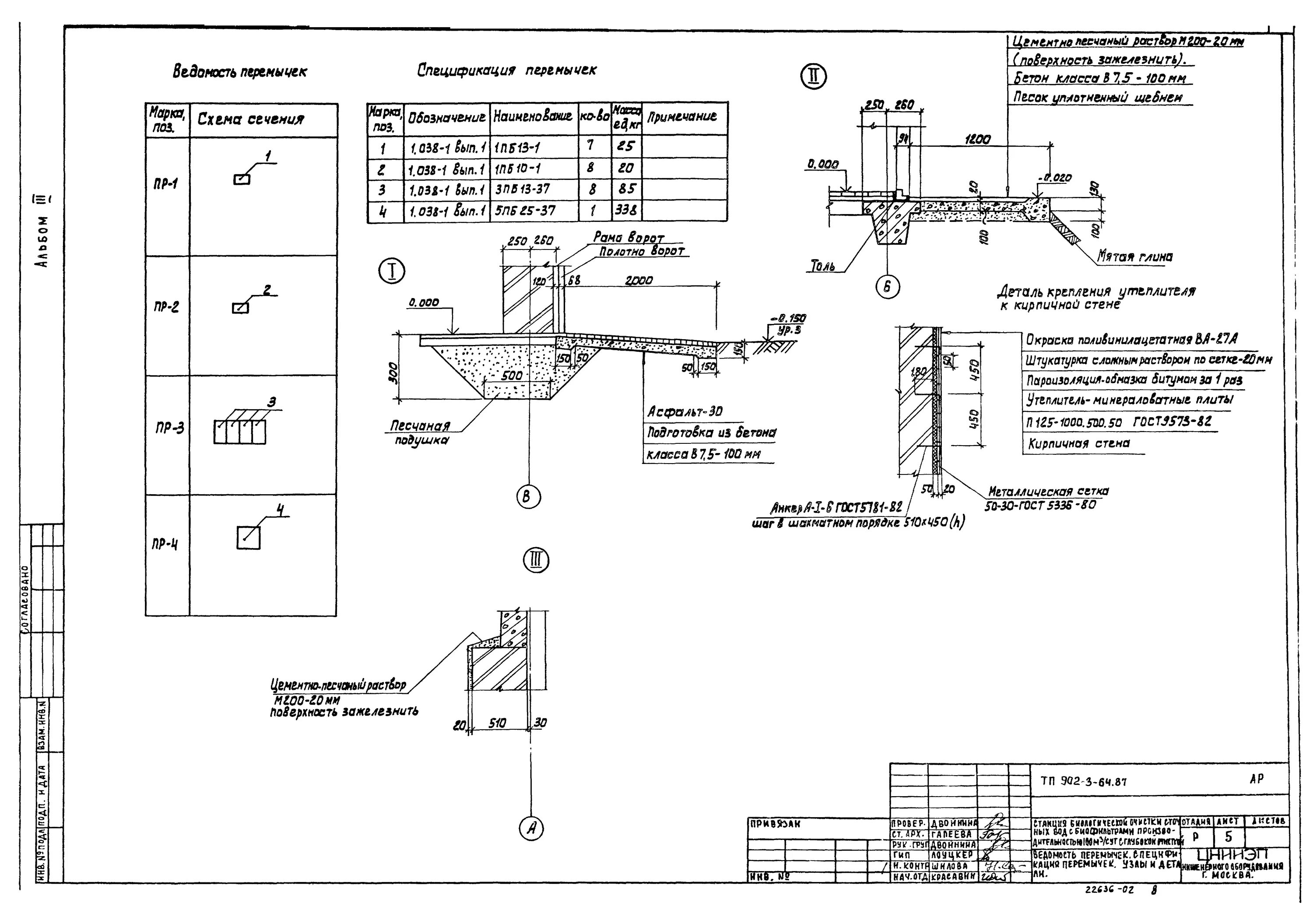
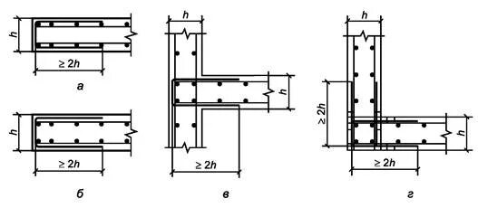
Сп жб конструкции