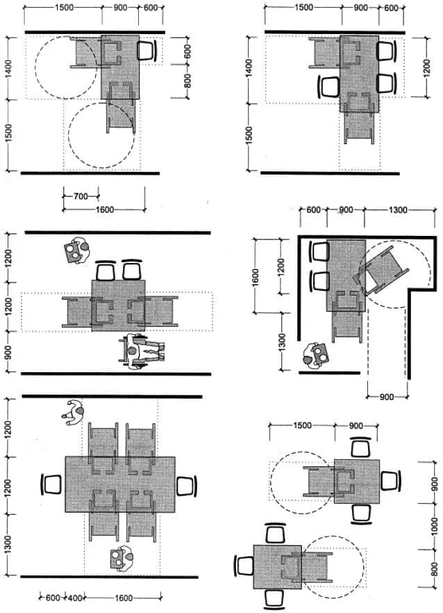
Сп общественные здания 118.13330 2012