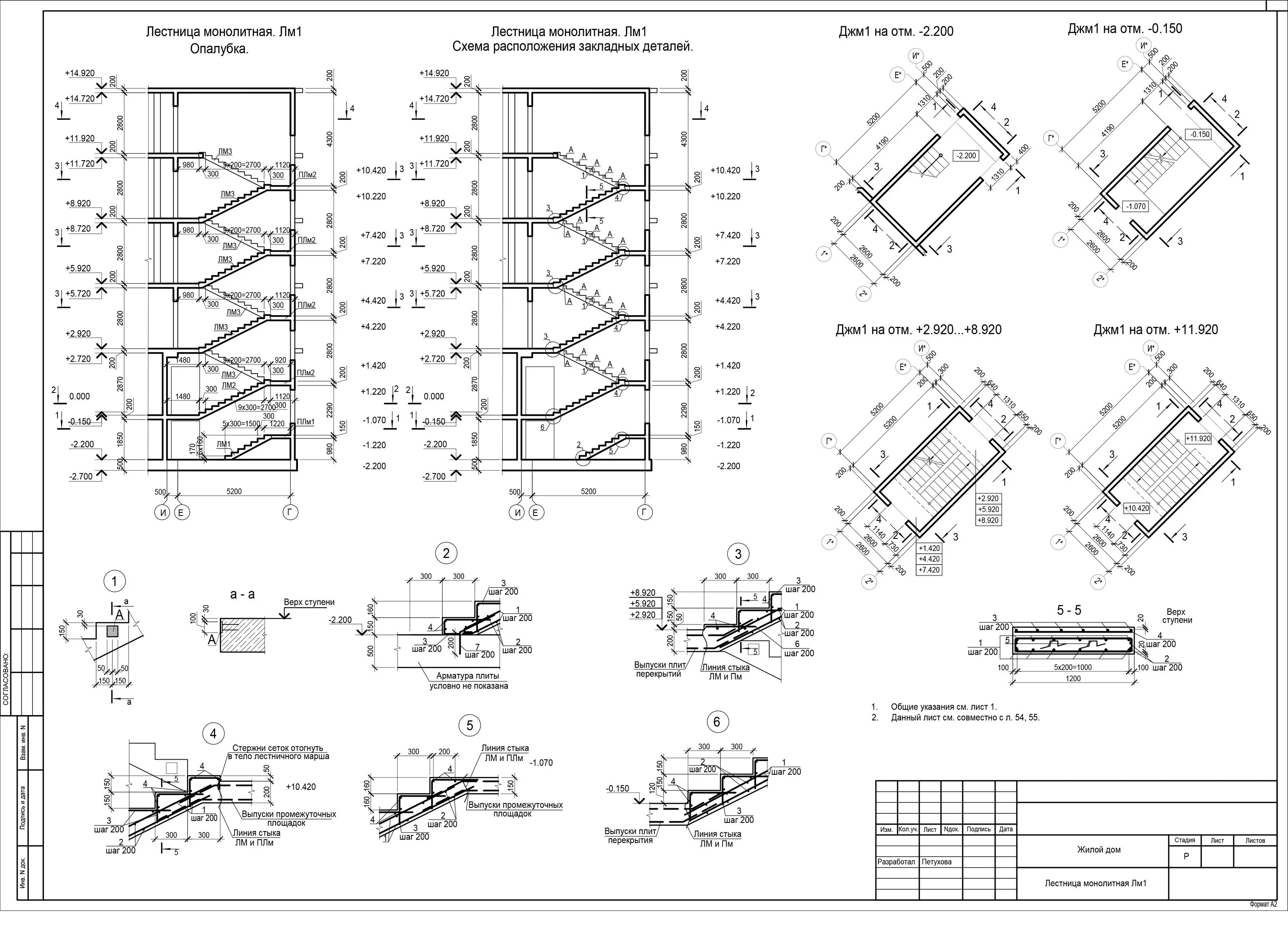
Сп монолитные конструкции зданий