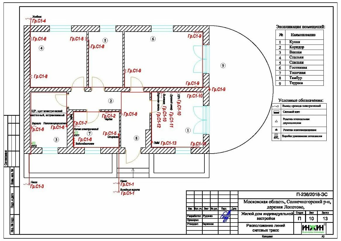
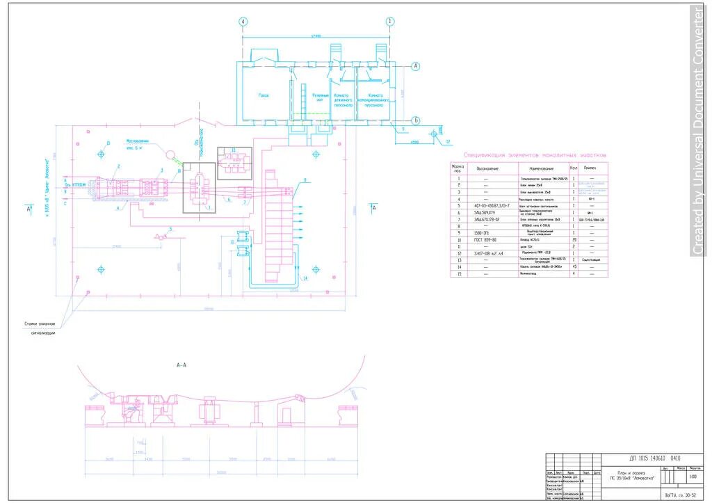
Сп электроснабжение зданий