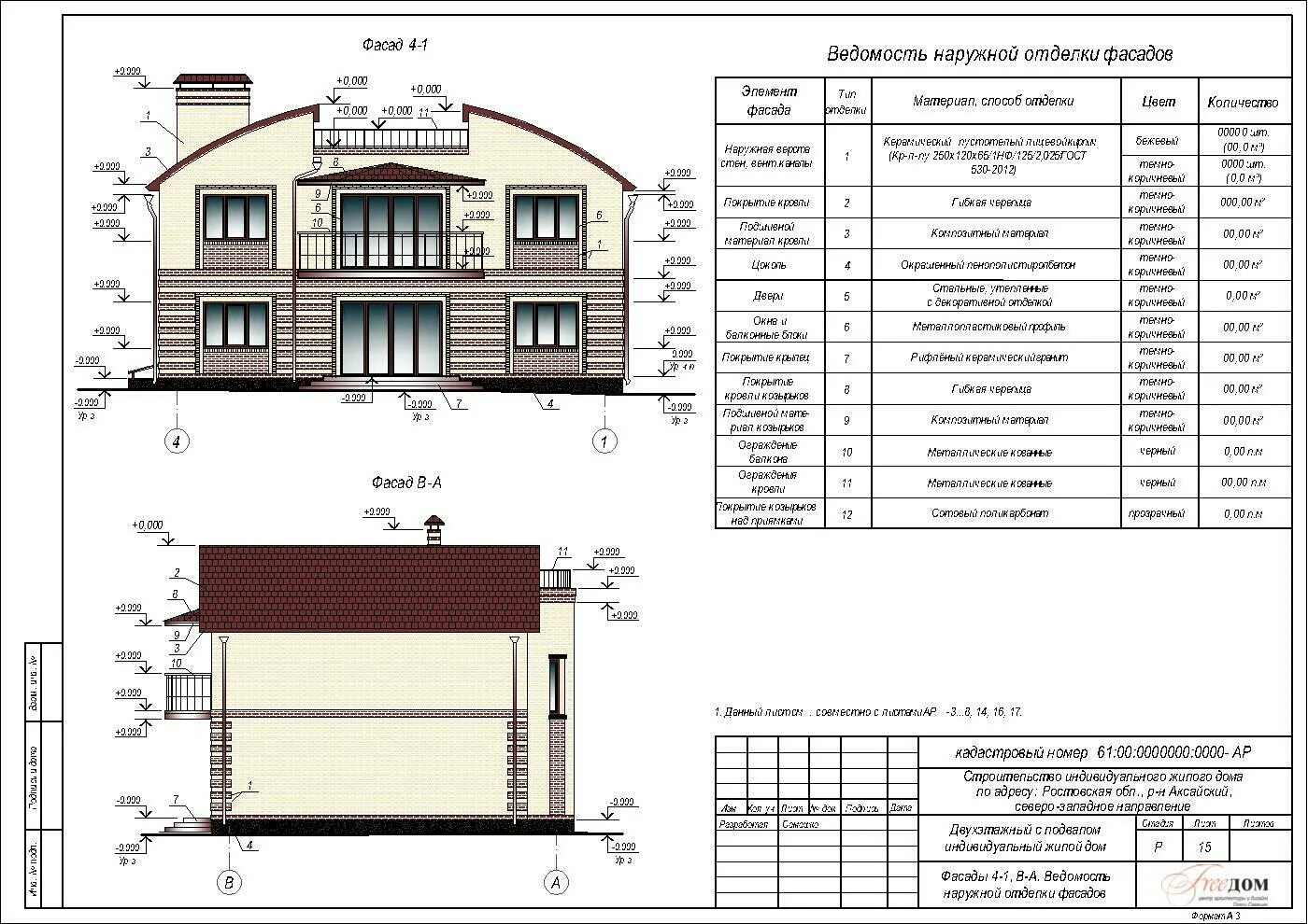
Сп архитектурные решения жилых зданий