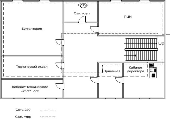
Создание контролируемой зоны