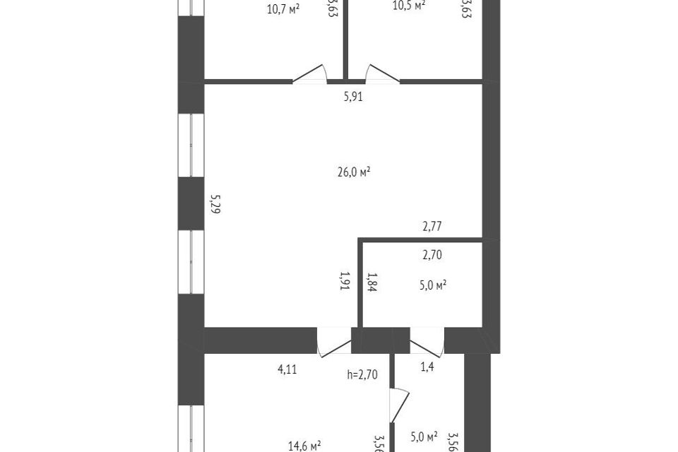
Совхозный проезд