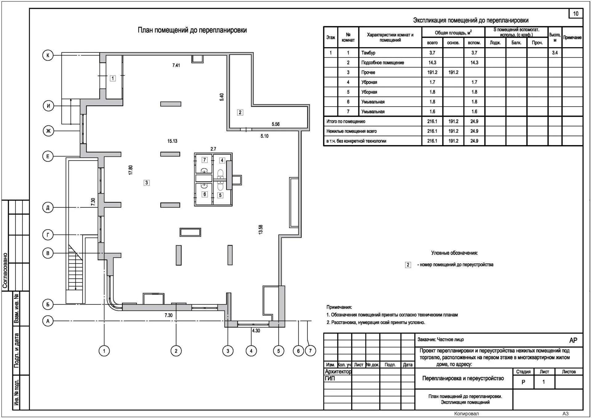
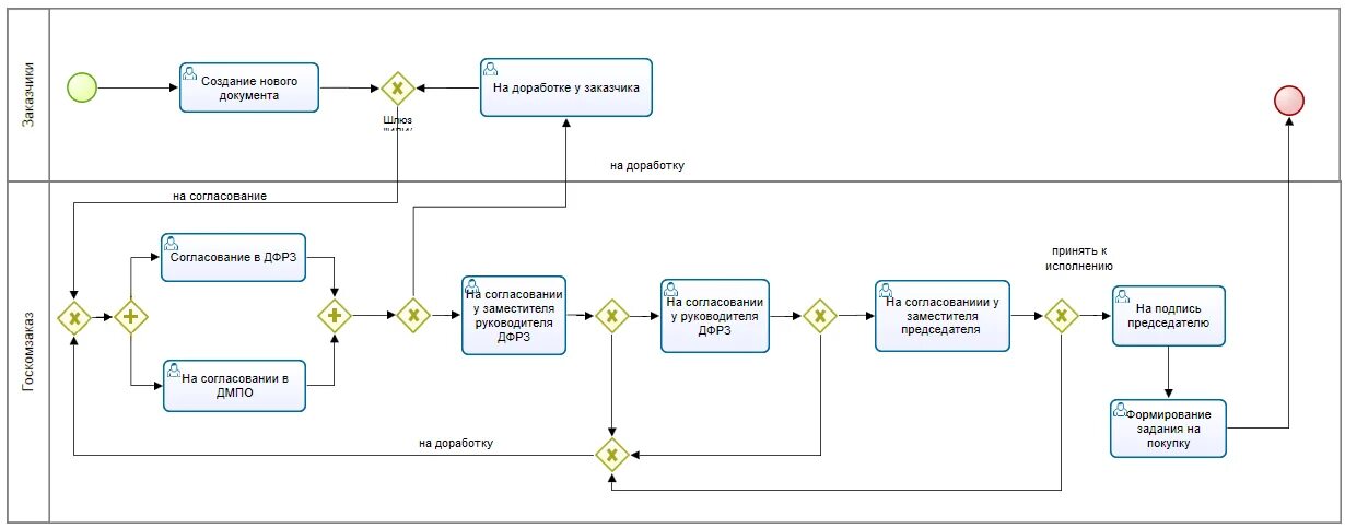
Согласование изменения проекта