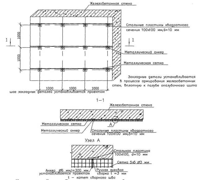
Снип стены и перегородки