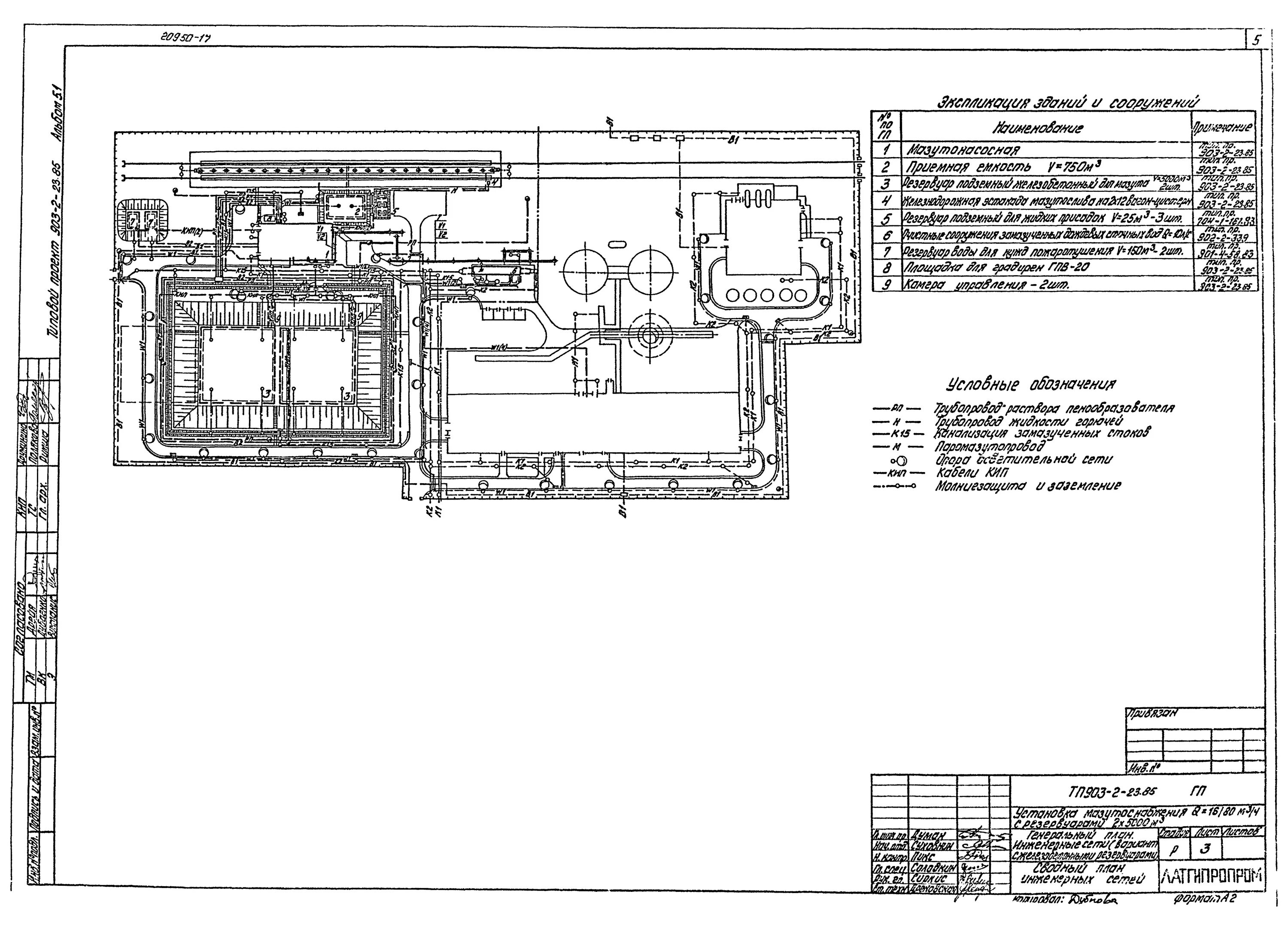
Снип инженерные сети