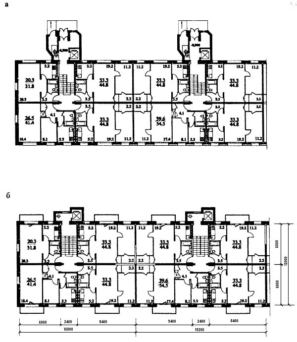
Сн 3.02 01 жилые здания