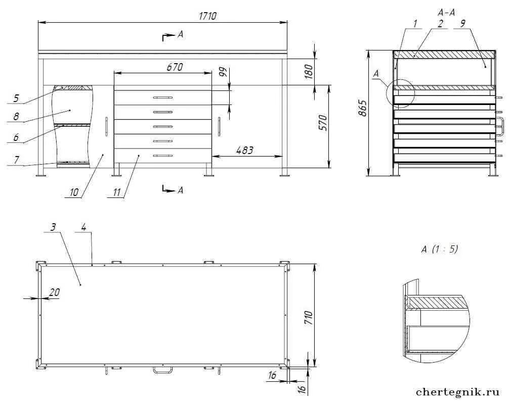
Слесарная тумба описание конструкции и ее назначение