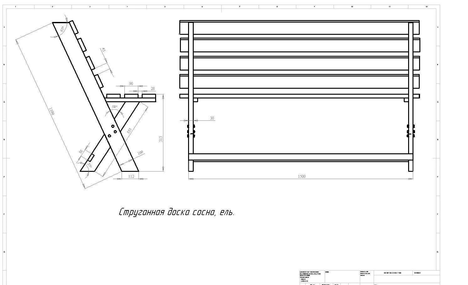
Скамейка из досок размеры