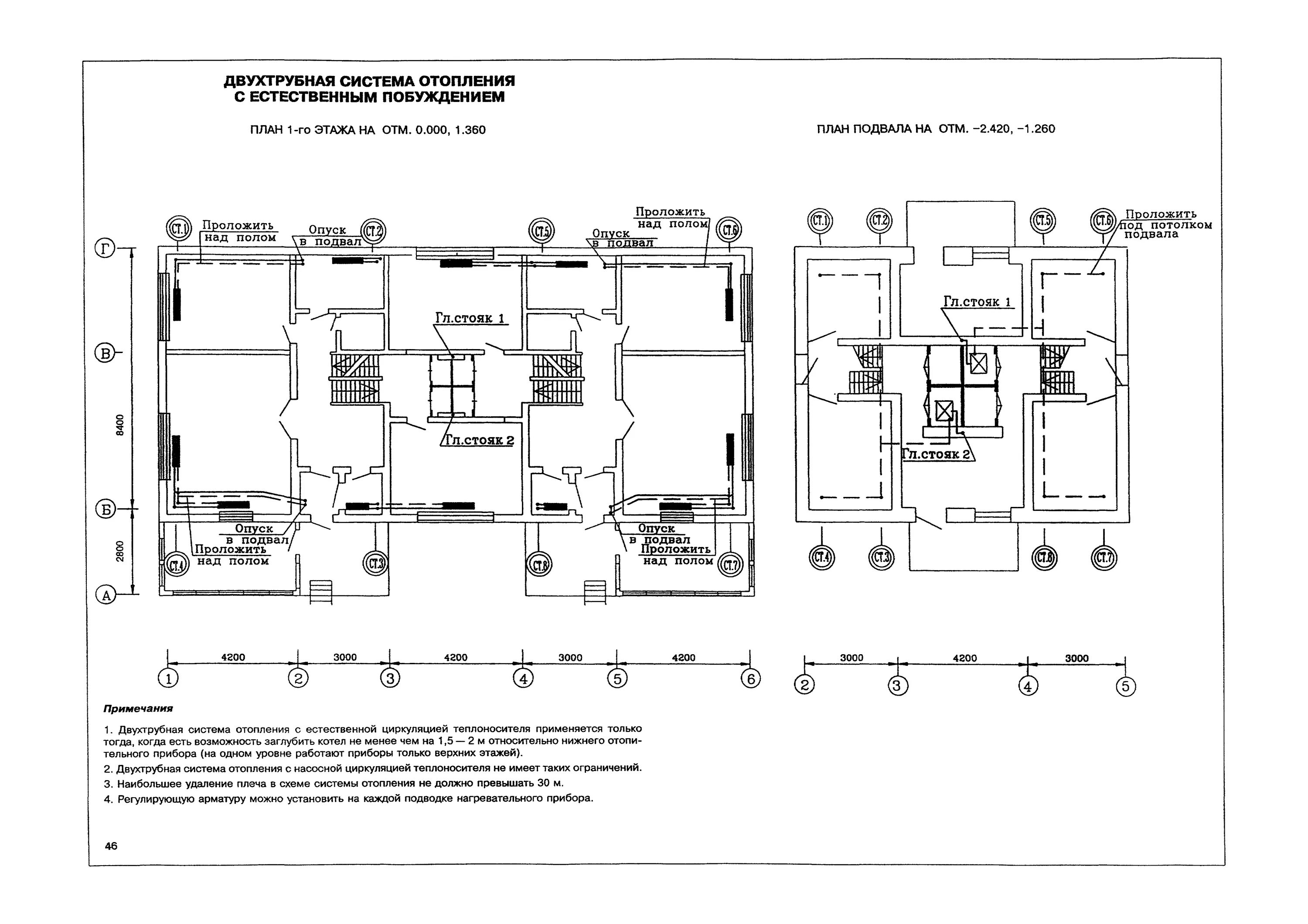
Система отопления общественного здания