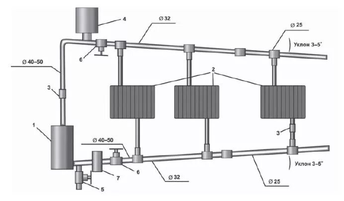
Система отопления для электрокотлов