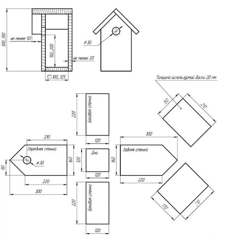
Синичник своими руками размеры