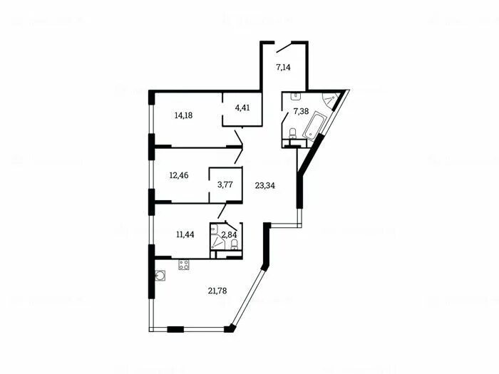
Шмитовский проезд 19