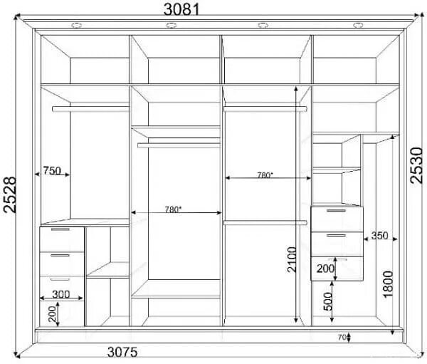
Шкафы размеры внутри