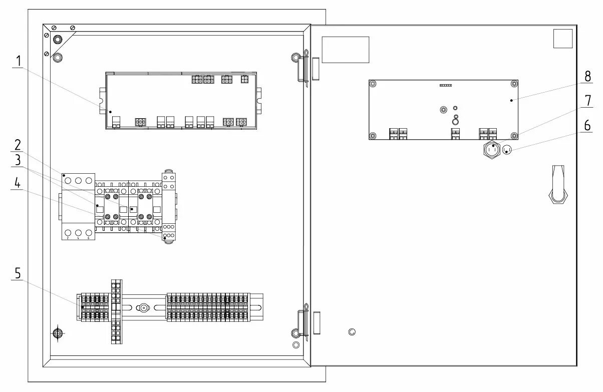
Шкаф управления шун в r3