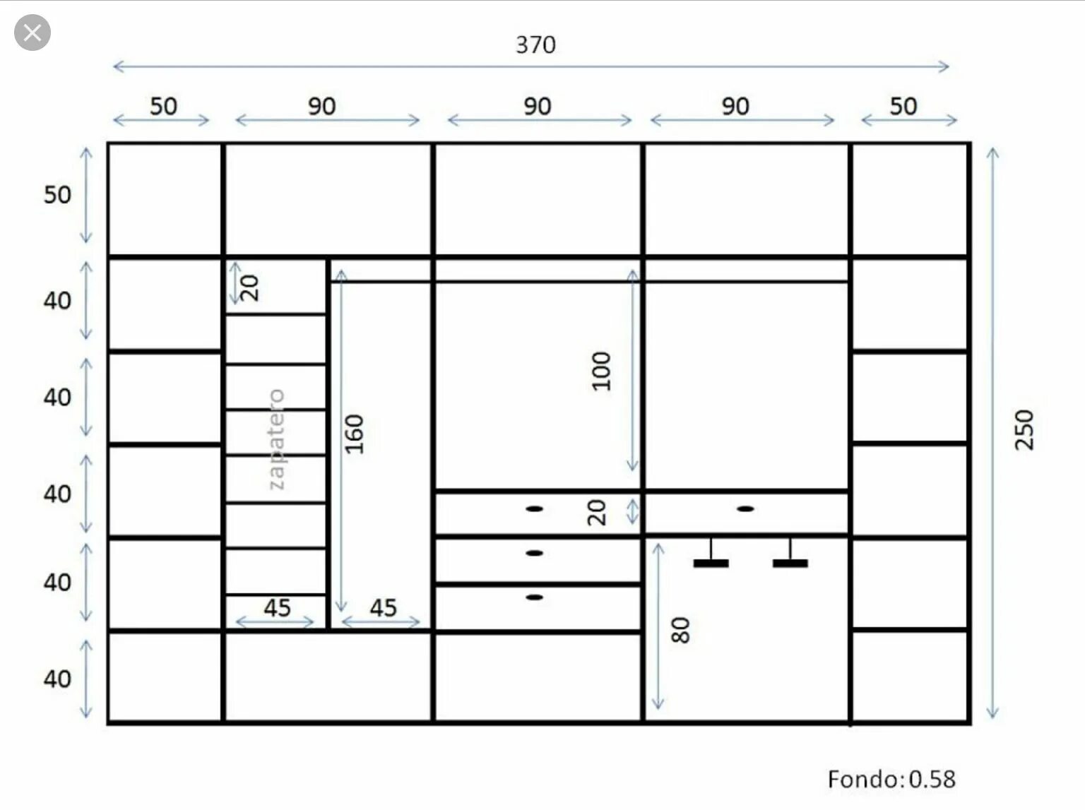
Шкаф купе в прихожую схема