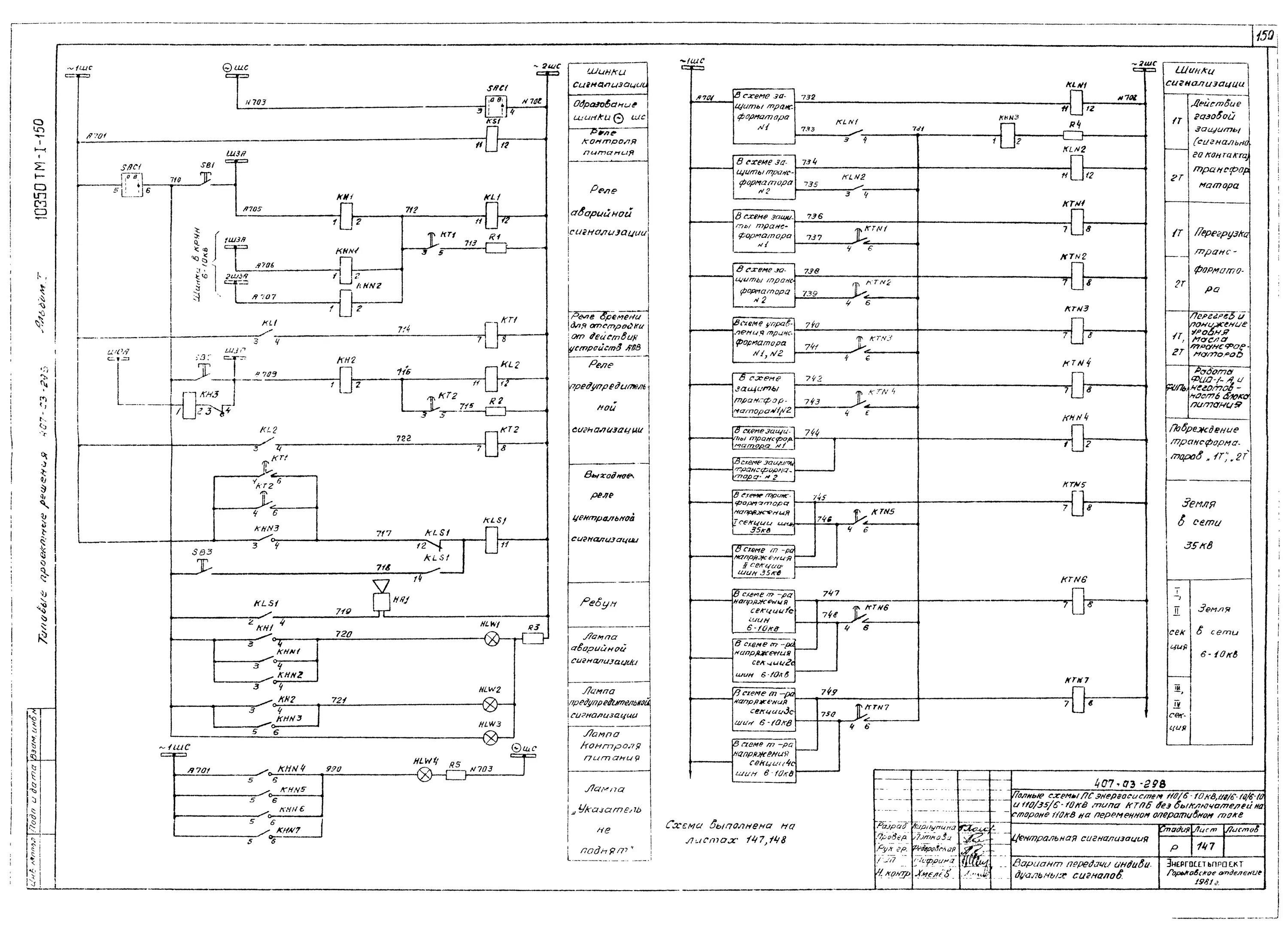
Схемы центральной сигнализации