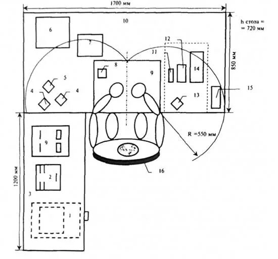
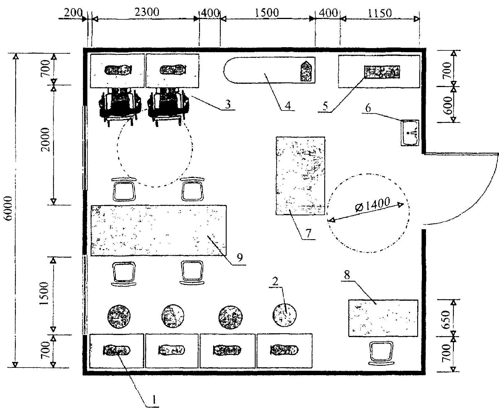
Схемы размещения рабочих мест