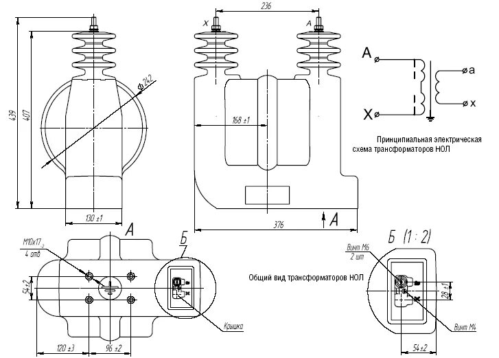
Схемы электрических соединений трансформаторов