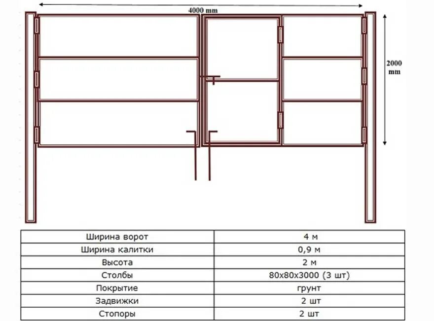
Схема ворот из профильной трубы